- Главная
- Септики Топас
- Топас 8 Пр
Септик Топас 8 Пр в Екатеринбурге
Цена на Топас 8 Пр
Скидка -10%
|
Топас-С 8 Пр в наличии (1 компрессор) |
189 810 руб. |
|---|---|
| Цена по акции (доставка + монтаж) | 231 810 руб. |
|
Топас 8 Пр в наличии (2 компрессора) |
210 510 руб. |
| Цена по акции (доставка + монтаж) | 252 510 руб. |
- Для 8-и человек
- Объем переработки: 1.5 м3/сут.
- Залповый сброс: 440 л.
- Вес: 360 кг.
- Длина: 1.6 м
- Ширина: 1.2 м
- Высота: 2.6 м
- Глубина залегания: 90 см
- Потреблeние энергии: 1.6 кВт/сут
Доставка и оплата
- Срок доставки по Екатеринбургу – от 1 дня
- Доставка до 30 км от МКАД – бесплатно
- Доставка свыше 30 км от МКАД – 50 руб/км
- Оплата – наличный или безналичный расчет
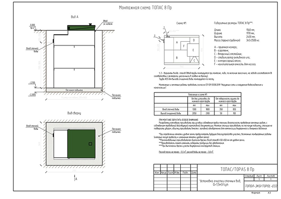
Информация по монтажу
Комплектация
Труба канализационная раструбная ПП 110х2,7 L=0,1 м
Пруток сварочный ПП 7мм - 1 м
Компрессор 40-60 Вт - 2 шт.
Компрессионный отвод – 1 шт.
Насос дренажный с поплавковым выключателем – 1 шт.
Комплект фитингов и шлангов
Технический паспорт – 1 шт.
Допустимое количество сантехники
Человек x8
Раковины x3
Души/ванны x1
Туалеты x2
Стиральные машины x1
Посудомоечные машины x1
Покупайте Топас 8 Пр у официального дилера Топол-Эко!
- Гарантия 3 года от официального дилера!
- Оплата любым удобным способом!
- Наличными
- Банковской картой
- Бесплатная доставка до 30 км от МКАД
- Свыше 30 км: от 50 руб. за 1 км
Похожие товары
Топас 6 Пр
Рассчитан
на проживание: 6 человек
на проживание: 6 человек
Объем
переработки: 1 м3/сут.
переработки: 1 м3/сут.
Способ отвода
очищенной воды: принудительный
очищенной воды: принудительный
Глубина
подводящей трубы: 95 м.
подводящей трубы: 95 м.
183 600 руб.
Топас 9 Пр
Рассчитан
на проживание: 9 человек
на проживание: 9 человек
Объем
переработки: 1.7 м3/сут.
переработки: 1.7 м3/сут.
Способ отвода
очищенной воды: принудительный
очищенной воды: принудительный
Глубина
подводящей трубы: 95 м.
подводящей трубы: 95 м.
212 130 руб.
Комплектующие
1 400 руб.
600 руб.
25 руб.
Отзывы о компании
Выполненные работы
Доставка и установка очистных станций
д. Кривая Клетка, база отдыха «Селигер-клуб»
Доставка и установка очистных станций
Тверская обл., д. Скулино
Доставка и установка очистных станций
Тверская обл., г. Кувшиново, ул. Северная, д.39А
Topas-septiki.ru

