- Главная
- Септики Топас
- Топас 4
Септик Топас 4 в Екатеринбурге
Цена на Топас 4
Скидка -10%
|
Топас-С 4 в наличии (1 компрессор) |
127 980 руб. |
|---|---|
| Цена по акции (доставка + монтаж) | 169 980 руб. |
|
Топас 4 в наличии (2 компрессора) |
142 740 руб. |
| Цена по акции (доставка + монтаж) | 184 740 руб. |
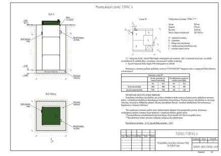
- Для 4-х человек
- Объем переработки: 0.8 м3/сут.
- Залповый сброс: 175 л.
- Вес: 215 кг.
- Длина: 1 м
- Ширина: 1 м
- Высота: 2.5 м
- Глубина залегания: 90 см
- Потреблeние энергии: 1.5 кВт/сут
Доставка и оплата
- Срок доставки по Екатеринбургу – от 1 дня
- Доставка до 30 км от МКАД – бесплатно
- Доставка свыше 30 км от МКАД – 50 руб/км
- Оплата – наличный или безналичный расчет
Информация по монтажу
Модификации септика Топас 4
Описание
Топас и Топас-С 4 являются автономными устройствами для переработки стоков частных домов при отсутствии доступа к центральной канализации. Устройство разработано компанией ТОПОЛ-ЭКО, которая уже более 20 лет специализируется на создании очистных сооружений хозяйственно-бытовых сточных вод. Станция биологической очистки Топас 4 предназначена для 4 пользователей и позволяет перерабатывать до 0.8 м3 стоков в сутки. Объем единовременного выброса жидкости составляет 175 литров, а энергопотребление станции составляет 1.5 кВт в сутки.
Топас 4 изготовлен из прочного полипропилена, не подверженного коррозии или деформации. Производитель продумал универсальное исполнение, поэтому устанавливать оборудование можно в любой тип грунта, в том числе и при высоком уровне грунтовых вод. Работа оборудования основана на применении современных методов биологической очистки, в результате которой обеспечивается очистка до 98% и на выходе вода не имеет цвета и запаха. Она может безопасно сбрасываться или использоваться в технических целях без вреда для человека и окружающей среды.
Цены на установку септика Топас 4
| Модель | Шеф-монтаж | Монтаж в песок | Монтаж в суглинок | Монтаж в глину | Монтаж в плывун |
|---|---|---|---|---|---|
|
Топас-С 4 /
Топас 4 |
шеф-монтаж 7 500 руб. |
монтаж в песок 14 500 руб. |
монтаж в суглинок 14 500 руб. |
монтаж в глину 14 500 руб. |
монтаж в плывун 33 000 руб. |
Монтаж при выезде от 100 км до 150 км — + 1500 руб.
Комплектация
Стандартная комплектация септика состоит из таких элементов как:
Внутреннее устройство
Наименование отсеков
- А. Приемная камера
- Б. Аэротенк
- В. Стабилизатор активного ила
- Г. Вторичный отстойник
Устройство очистного сооружения
- Ввод стоков
- Фильтр крупных фракций
- Эрлифт, главный насос
- Эрлифт рециркуляции
- Эрлифт откачки ила
- Эрлифт стабилизированного ила
- Компрессоры - 2 шт. У Топас-С 4 - 1 шт.
- Устройство сбора неперерабатываемых частиц
- Выход очищенной воды
- Фильтр тонкой очистки
- Датчик уровня
- Распаячная коробка для подключения подводящего эл. кабеля
- Кнопка включения и выключения УОСВ
- Блок управления
- Розетки для подключения компрессоров
Преимущества
- степень очистки сточных вод: 98%
- заводская гарантия составляет 3 года
- биологический способ очистки стоков
- отсутствие неприятных запахов
- септик “топас” - Бренд №1
Монтаж септика
Монтаж септиков Топас 4 и Топас-С 4 необходимо выполнять в соответствии с правилами и рекомендациями производителя. Процесс включает в себя следующие работы:
- Выбор оптимального места на участке.
- Подготовка котлована согласно монтажной схеме.
- Монтаж подводящего трубопровода.
- Установка и фиксация корпуса септика в котловане.
- Обсыпка котлована песком с параллельным заполнением водой.
- Выполнение входного отверстия, установка компрессоров.
- Досыпка котлована до уровня местности.
Установка Топас 4 должна осуществляться квалифицированными специалистами, что обеспечит соблюдение всех правил и норм монтажа, гарантию корректного подключения и бесперебойной работы станции. Специалисты нашей компании имеют необходимую квалификацию и большой опыт работы, что позволит выполнить качественный монтаж под ключ в быстрые сроки по оптимальной стоимости. Мы поможем с выбором оборудования, доставим его на объект, осуществим монтаж и пусконаладку, а также проконсультируем по эксплуатации станции.
Техническое обслуживание септика
Раз в неделю – визуальный контроль работы.
Раз в 3 месяца:
- удаление осадка из стабилизатора активного ила с помощью встроенного эрлифт-насоса или фекального насоса;
- очистка насосов эрлифтов и фильтра крупных фракций в приёмной камере;
- очистка и промывка всей внутренней емкости септика Топас 4;
- прочистка форсунок 1 и 2 цикла;
- удаление неперерабатываемого мусора с помощью нержавеющего сита.
Раз в год – прочистка воздушного фильтра компрессора.
Раз в 2 год – замена мембран компрессора.
Раз в 5 лет – очистка донной части приемного резервуара и аэротенка от минерализованного осадка.
Раз в 10 лет – замена аэрационных элементов на аэраторах.
Варианты водоотведения
В ливневую канаву
В дренажный колодец
В накопительный резервуар
На поле фильтрации или в дренаж
В ливневую канаву через накопительный резервуар
В водоем через блок доочистки Похожие товары
Топас 5
на проживание: 5 человек
переработки: 1 м3/сут.
очищенной воды: самотечный
подводящей трубы: 90 м.
Топас 6
на проживание: 6 человек
переработки: 1.15 м3/сут.
очищенной воды: самотечный
подводящей трубы: 90 м.
Комплектующие
1 400 руб.
600 руб.
25 руб.
Отзывы о компании
Выполненные работы
Доставка и установка очистного сооружения
д. Полтево, КП Полтево-Форест
Topas-septiki.ru

